Du bist hier: Startseite1 / Immobiliendetails
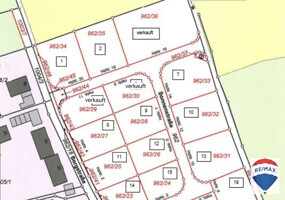
Lageplan
Lageplan - Sonnenstraße
Quelle Bayernatlas
Google Maps

Ihr eigenes Grundstück im Staatsbad Bad Steben - Sonnige Aussichten in der Sonnenstraße!

81.000 €
Bad Steben
600 m²
Grundstück
Willkommen im wohl attraktivsten Neubaugebiet des Frankenwaldes - im Staatsbad Bad Steben, dem charmanten Kurort im Herzen von Oberfranken. Hier präsentieren wir Ihnen attraktive Grundstücke für Wo(…)
zur Detailansicht